CASA SARA E ROBERTO 

Via Aurelia

Roma 

2023

 

mq 140

stato: DA RISTRUTTURARE 

 

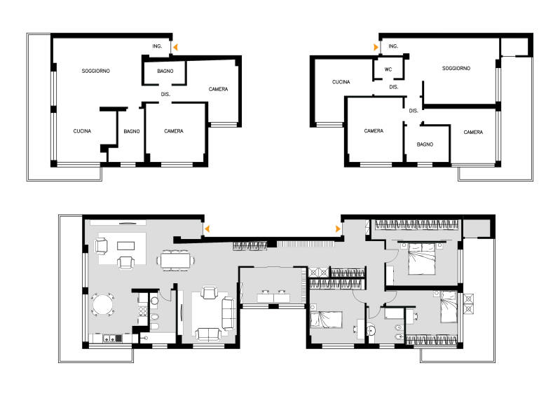
Questo progetto nasce dall'unione del precedente appartamento di Sara e Roberto con quello di fianco, acquistato da loro dopo una lunga trattativa per poter creare un unico immobile più spazioso e con ambienti meglio distribuiti. 

Il primo appartamento, dove già risiedevano da tempo e quindi già oggetto di una recente ristrutturazione, presentava una zona giorno con annessa cucina (molto ampia), e una zona notte composta da una camera da letto matrimoniale, una cameretta piuttosto piccola per i loro due bambini e due bagni, uno molto grande con vasca (che abbiamo mantenuto) e uno più piccolo di servizio (che abbiamo invece rimosso). 

L'appartamento confinante è esattamente speculare al suddetto, ma con assetto e dimensioni degli ambienti ancora originarie in quanto non sono stati effettuati lavori di manutenzione straordinaria su di esso primo dell'acquisto di Sara e Roberto. 

L'unione dei due immobili ha comportato il rifacimento parziale del primo appartamento (sono stati salvati i pavimenti e gli impianti del soggiorno, della cucina e del bagno con vasca) mentre il resto è stato demolito e rifatto ex novo a favore anche di una soluzione domotica degli impianti (comandi vocali di accensioni luci e serrande con Google, aria canalizzata ripartita per ogni ambiente con Air Zone LG, ecc). Nel secondo appartamento, abbiamo salvato i pavimenti in parquet delle tre camere da letto (che sono stati lamati e portati ad un tono di saturazione meno acceso del precedente)  e installato un nuovo pavimento in ceramica nelle zone di servizio (bagni, corridoi, studio, disimpegni vari) . Questo passaggio è stato ovviamente obbligato dalle nuove demolizioni e ricostruzioni effettuate e dalla rimozione dei vecchi impianti idrico-sanitari e termici presenti in entrambi gli appartamenti. 

E' stata ricavata una grande zona homeworking per i due clienti nella zona di unione dei due appartamenti (prima le postazioni di lavorano erano una in soggiorno e una in camera dei bambini). 

Di seguito planimetrie e foto.