CASA ALESSANDRO P. 

 

 

Via Erminio

Roma 

2021 

 

MQ 55

STATO: DA RISTRUTTURARE

 

Il nostro cliente Alessandro ha acquistato questo appartamento con intento di tipo manageriale: uomo single, consulente e necessità di dedicare una zona dell'appartamento a studio privato, dove potersi anche dedicare alle sue amate chitarre! 

L'appartamento al prima sopralluogo presentava uno stato piuttosto obsoleto, che è stato pienamente rinnovato negli spazi e nelle finiture. 

 

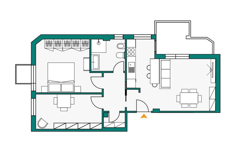
Il progetto prevede di non stravolgere in alcun modo la disposizione degli ambienti, ma di semplificarli: la demolizione della parete divisoria della cucina e soggiorno va a creare uno open-space ben separato dalla zona notte. Il bagno è stato rivisitato nella sua disposizione e liberato di tutti i muretti precedentemente costruiti. 

Il soggiorno, abbastanza compatto, è stato arredato con una parete di rivestimento a mattoncini su cui sono incise alcune città che ricordano i viaggi del nostro cliente.

Gli impianti sono stati rifatti tutti ex-novo e si è pensato anche ad una predisposizione, mediante centralina, di riscaldamento autonomo. 

Ripostiglio e soppalco sono elementi sempre utili da ricavare in queste piccole metrature prive di cantina. 

 

n.b. per un problema tecnico, di questo appartamento si salvano poche e scomode foto di cantiere e le immagini di render per la presentazione dei materiali e del progetto prima dell'approvazione da parte del cliente!

 

è IMPORTANTISSIMO far vedere al cliente un'anteprima della propria futura abitazione..spesso non si ha la capacità o la sicurezza di immaginare l'abbinamento e il contrasto materico e cromatico, pertanto l'errore è dietro l'angolo..e a lavori finiti non si può tornare indietro nel tempo perchè "non mi piace"! 

Pertanto lo strumento dei render (anche il più semplice che ci sia) è essenziale per qualsiasi tipo di scelta e per evitare qualsiasi tipo di spiacevole sorpresa in corso d'opera!