CASA LEONARDO E CLAUDIA

 

 

 

Viale Jonio

Roma

2021 

 

MQ 120

STATO: DA RISTRUTTURARE

 

L'appartamento in questione ha una metratura molto ampia, oltre i 100mq, acquistato da una giovane coppia con due bimbi piccoli che si è trasferita per avere spazi più grandi per sé stessi e per i loro bambini. 

 

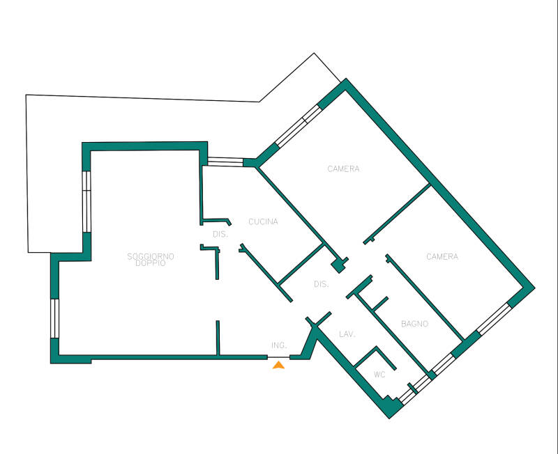
La visualizzazione dell'immobile appena acquistato ha un carattere datato. Intervento totale di stravolgimento di casa e rifacimento totale. 

La pratica catastale richiesta è una C.I.L.A. (Comunicazione Inizio Lavori Asseverata).

 

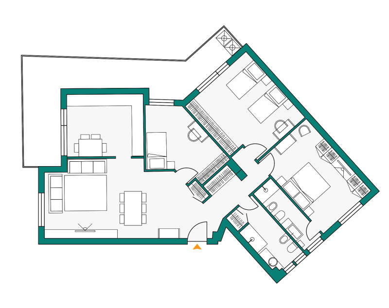
IN CHE MODO ABBIAMO VALORIZZATO L'APPARTAMENTO?

 

Sicuramente l'intervento principale è stato quello di "dare ordine ai muri", prima disposti in modo caotico andando a sacrificare molti spazi e togliendo luce ad intere porzioni di casa.

La zona giorno è stata destinata per intero nel lato sinistro di casa, con migliore esposizione e luce.

La zona notte è posizionata sulla destra con due bagni e due ampie camere da letto. Nel mezzo è stata ricavata una camera singola ad uso studio/homeworking di Leonardo. 

Abbiamo ricavato un piccolo ripostiglio nel primo bagno e una serie di armadiature/cappottiere in ingresso e corridoio, andando ad integrare la struttura portante dell'appartamento.