CASA LIBERA E DOMENICO

 

Via Tuscolana

Roma 

2022 

 

mq 90

stato: DA RISTRUTTURARE - PARZIALE

 

La giovane coppia Libera e Domenico, con la loro bambina di circa 8 anni, vive questo appartamento già da molto tempo e dopo il lock-down lui spesso è in smart-working mentre lei ha ripreso le sue lezioni a tempo pieno! 

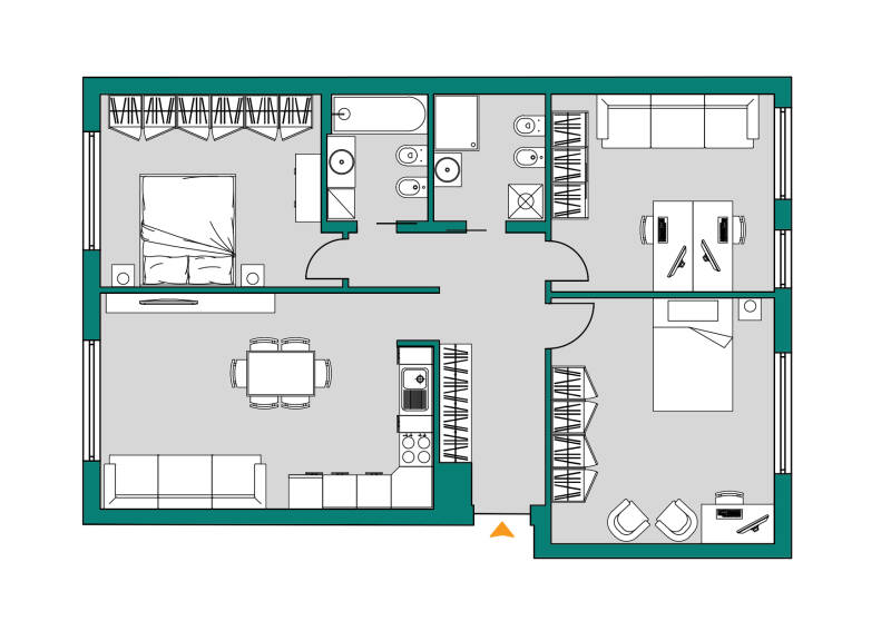
Pertanto la postazione di lavoro di Domenico era stata "arrangiata" nella loro camera da letto, molto ampia e con forma piuttosto allungata. 

Le esigenze dei clienti sono state molteplici:

- innanzitutto salvare i pavimenti in marmo laddove possibile e posizionarne di nuovi ma pur sempre allineati allo stile laddove dobbiamo demolire;

- creare un doppio bagno andando incontro ad orari di lavoro e di scuola sempre più serrati;

- ricavare uno spazio homeworking per Domenico! 

TUTTO è POSSIBILE, bisogna rispettare solo le giuste pendenze per gli impianti! 

Quindi laddove c'era il bagno e la cucina ora c'è una terza camera da letto per ospiti ma sfruttata per lo più da Domenico nelle sue ore di lavoro; la camera da letto principale è stata ridotta di dimensioni (rispettando sempre il requisito dei 14mq per la camera matrimoniale) e al centro delle camere sono stati ricavati due bagni completi di tutto (anche di lavatrice). 

Per realizzare i due bagni nuovi è stato necessario rialzare la quota pavimento sia della nuova camera che di entrambi i servizi per poter collegare il tutto nella colonna di scarico principale con la giusta pendenza. 

La cucina è stata spostata nell'ampio soggiorno diventando un angolo cottura piuttosto comodo.