CASA CHIARA&NICOLA

zona Trionfale 

2022 

Roma 

 

mq 130

stato: RISTRUTTURAZIONE PARZIALE

 

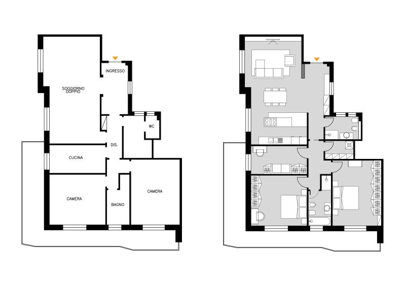
Un appartamento molto ben distribuito, ma mancante di qualche dettaglio funzionale per una famiglia che si ingrandisce un po' alla volta. Nel nostro primo sopralluogo abbiamo riscontrato subito dopo la zona di ingresso un grande e doppio salone, sfruttato dai precedenti proprietari in base alle loro esigenze. 

Le esigenze invece dei nostri clienti, Chiara e Nicola, giovane coppia con un bambino ed entrambi spesso in smart-working, riguardavano due punti fondamentali dell'immobile: da una parte una cucina piccola separata da un soggiorno troppo grande per un divano e un tavolo ma con un parquet da conservare il più possibile; dall'altra la presenza di un secondo piccolissimo bagno inglobato all'interno di un'area sfruttata in modo confuso e disordinato ad uso magazzino-ripostiglio-porta oggetti senza destinazione. 
Il nostro progetto si è concentrato appunto nella trasformazione di questo nucleo di pochi mq da riorganizzare al meglio, cercando di invadere il meno possibile il resto dell'appartamento e andando a toccare i pavimenti il meno possibile). 

IN DETTAGLIO:

- la vecchia cucina è diventato lo studio di Nicola, all'occorrenza può essere camera degli ospiti con un divano letto;

- la nuova cucina viene spostata nel doppio soggiorno, andando a creare un open-space importante, poiché la cucina è il primo elemento di arredo che si incontra quando si entra in casa. Gli impianti di acqua , corrente e gas sono stati realizzati andando a lavorare sul parquet con un meticoloso "scusi e cuci" di precisione da parte dei muratori e del parquettista che ha realizzato una ricucitura e lamatura dei listellini in modo del tutto invisibile! 

- il bagnetto di servizio diventa un secondo bagno completo (con doccia ed entrambi i sanitari) separato da tramezzature dalla lavanderia, che andrà ad ospitare la colonna lavatrice e asciugatrice e un armadio funzionale alla lavanderia! 

- l'ingresso sarà arricchito da una cappottiera in cartongesso che ingloba e nasconde il quadro elettrico e permette ai proprietari o agli ospiti di poggiare cappotti, scarpe e caschi. 

Il pavimento in parquet ovviamente in alcuni punti non abbiamo potuto salvarlo in alcun modo, mentre nei bagni per esigenze di impianti e di estetica è stato sostituito il pavimento con una nuova ceramica. 

 

NB. per motivi di privacy, pubblichiamo la planimetria di progetto e solo le foto dell'ante operam, delle fasi di cantiere e del montaggio della cucina.